【リノベーションbefore/ after#5】立地と住環境が決め手!福島市渡利の平屋
福島市渡利、花見山公園の近くにある築54年の平屋をリノベーションした事例です。
間取りは4DKでしたが、2LDKに変更しお気に入りの住まいとなりました。
ブロック塀を解体し車の出し入れができる様にするところから始まった今回の事例ですが、
どの様に暮らしやすい住まいへと改修したのか、見ていきたいと思います。
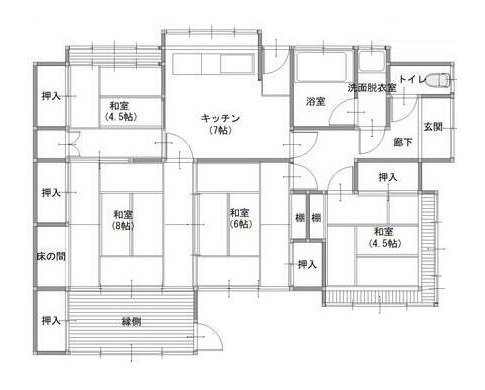
間取り/before
83.77㎡の4DKです。
住宅が密集しておらず静かな住環境で、人目を気にせず休日は料理をしたり車を手入れしたりして過ごすにはちょうど良い物件だったのが決めてでした。
廊下が短く有効な空間が取れており、駐車場側から出入りできる縁側や掃出し窓の和室等、
使い勝手が良い造りや、91坪ある敷地、西側の大きな物置小屋等、収納やお庭の使い勝手は申し分ない物件です。
一方、各部屋が仕切られていて開放感が少なく、キッチンは壁付けのため視界が限定されてしまいます。
洗面所と玄関が狭く、生活の上で十分なスペースが確保できていません。
浴室は南北に長さがあり、在来工法のため、ユニットバスの規格と寸法が合いません。
床の下地も傷んでいる箇所がありました。
間取り/after
対面キッチンに変更し、さらに和室2間とつなげてLDKとしました。
壁を取り払い開放感のある空間に、モルタル調のクロスを選択し、木造住宅ながらもコンクリート造の様な内装となっています。ヴィンテージ調のフローリングも元のお部屋の雰囲気にマッチし、あえて新品感を出さない仕上げとなっています。
6帖の和室は洋室へ変更し、壁で仕切って個室としました。床は毛足が長めのタイルカーペットです。物入はドレッサー等がおけるスペースに変更しました。
勝手口を潰して1坪タイプのユニットバスと洗面所が入る空間を確保しました。
トイレの位置を和室の押入へ変更し、玄関を広げました。
水回りの位置が大きく変わっていますが、床や壁を取り払い、骨組み状態にすることで下地の状態確認と補修、床下の防湿処理、各種配管の取り回しなど、一般的なリフォームよりもできる事が増え、効果的な改修を行うことができました。
<事例写真>
リビング/before
リビング/ after
キッチン/before
キッチン/ after
玄関/before
玄関/ after
寝室/before
寝室/ after
洗面所/before
洗面所/ after
浴室/before
洗面所/ after
トイレ/ after
<予算と折り合いを付けた事>
・室内の壁も昔ながらの土壁で作られており、一般的な壁よりも壊すのが大変だったが、駐車場の地ならしをするため、土として再利用できた。
・ユニットバスを設置した際に生まれた余分なスペースを、勝手口のドアを生かした収納にした。
・予算を抑えるために4.5帖の和室と縁側は今回施工しなかった。
・リビングに構造上なくせない柱が1本できたので、クロスで仕上げて目立ちにくくした。
・既存のドアを塗装して再利用し、コストダウンした。
・屋根、外壁、物置小屋は今回手を付けず、予算を維持した。
<最後に>
中古の戸建は土地も建物もそれぞれ特徴があります。
予算とバランスを取りながら元の良さを生かしてお気に入りの住まいを実現するリノベーションをお手伝いしております。
他にも多数の参考事例や物件情報がございますので、気になる方はお気軽にお問合せください。
株式会社バースランド
担当 企画室 八巻
フリーダイヤル0120-804-250





















